Somerset Based Architects
Our office is based in Castle Cary, Somerset and we’d love to hear from you. Please get in touch with us for a chat about your project; your first consultation free


E. info@charlesgillespiearchitecture.co.uk

T. +44 (0) 7792497153

Old International Stores
Fore Street
Castle Cary
Somerset
BA7 7BG
Send an Enquiry

Find us

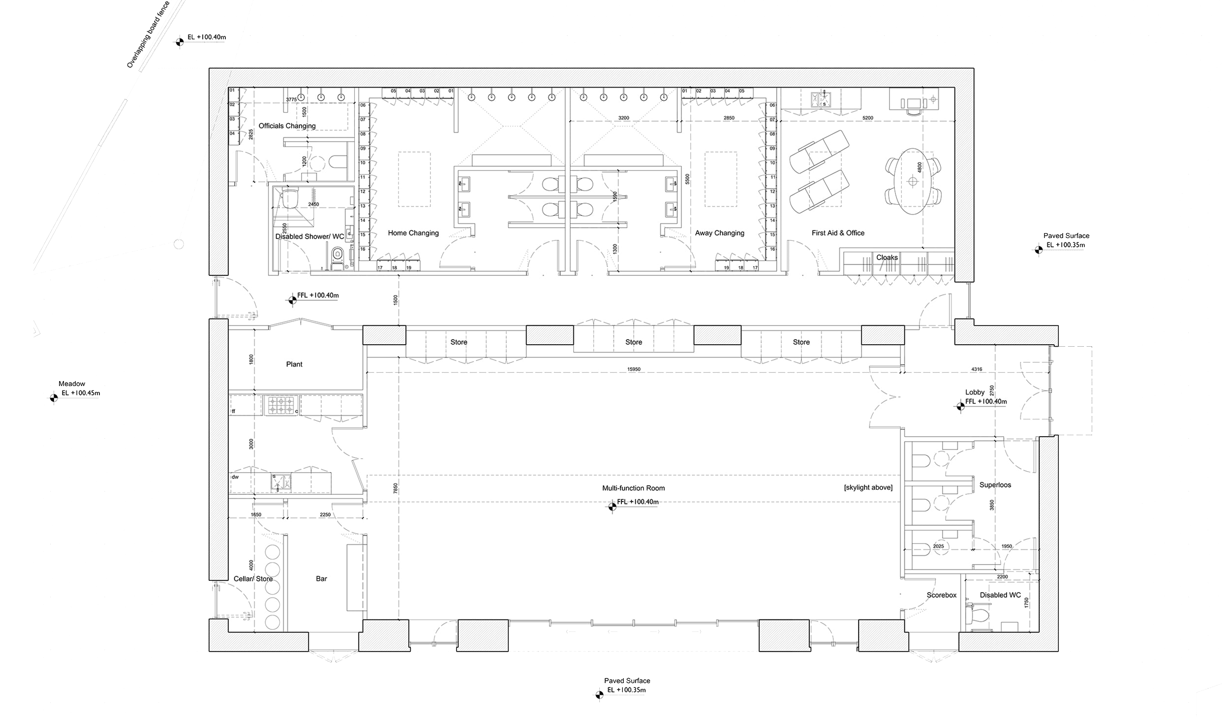
The Donald Pither Pavilion

Somerset - Commercial - Planning

A new social hub and sports pavilion for the Castle Cary football and cricket clubs. The proposals seek to create an exemplary scheme for the key stakeholders and wider community by creating a sustainable, contemporary design of significant quality, one which better serves a diverse set of local needs.

READ MORE +
Castle Cary is rapidly expanding with limited resources and infrastructure to support current and additional residents. As a result, the sports facilities within the town have become dependent upon an aging sports pavilion that is now not fit for purpose.

Its development is central to the Town Council’s strategic objectives; the development of the building, the health and wellbeing of marginalised groups with inclusion of the whole community and the aspiration to achieve net
zero status by 2030. The building will incorporate sustainable features such as solar panels, rainwater harvesting, having a high level of insulation, and energy
efficient lighting. We will be encouraging local people to walk to the location.

A new pavilion will provide a much needed 21st century sports facilities for all, a friendly family space for inter-generational supporters during matches and after match family socialising. It will greatly contribute to the assets in our Parishes, and we hope it will be enjoyed and appreciated by everyone for many years to come.
READ LESS -

Coming soon...

Let’s work together


GET IN TOUCH